+420 608216412
info@zdaril.cz
Úvod
Ukázky projektů
Menu
Ukázky projektů
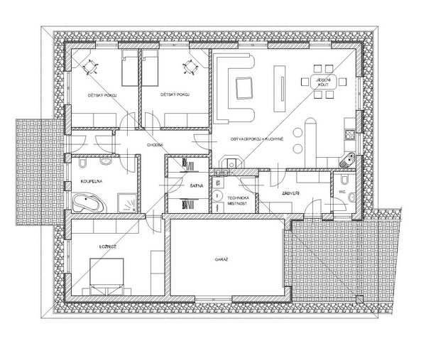
RD Tištín
Předchozí
Zpět na přehled
Následující
Předchozí
Zpět na přehled
Následující